Kren TBM Kren TBM Kren TBM Kren TBM Kren TBM Kren TBM Kren TBM Kren TBM Kren TBM Kren TBM Kren TBM Kren TBM Kren TBM

Pengangkutan Akhir Kren

Rumah / Produk / End Carriage / Pengangkutan Akhir Kren

Pengangkutan Akhir Kren

Produk

Pengangkutan hujung kren adalah salah satu komponen penting dalam struktur kren. Ia adalah sebahagian daripada sistem jambatan kren. Fungsi utamanya adalah untuk membawa mekanisme perjalanan kren dan menyokong operasi keseluruhan kren. Pengangkutan hujung kren menanggung beban keseluruhan sistem jambatan kren, berat kren itu sendiri dan berat beban. Ia mempunyai kapasiti tampung dan kestabilan yang mencukupi untuk memastikan kren tidak akan cacat atau rosak semasa operasi. Gerabak hujung kren ini bekerjasama dengan sistem trek dan roda, supaya kren dapat berjalan dengan lancar dan tepat di sepanjang trek. Reka bentuknya mesti memastikan sentuhan yang baik antara roda dan trek. Ia menyokong sistem pemacu kuasa dan sistem kawalan kren. Semasa operasi, mekanisme perjalanan kren, motor pemacu dan peralatan lain dipasang pada rasuk hujung. Sesetengah struktur pelindung direka pada rasuk hujung untuk melindungi sistem elektrik dalaman kren, sistem mekanikal, dsb. daripada pengaruh persekitaran luaran.

  • Spesifikasi
  • Mengenai TBM
  • Hubungi Kami
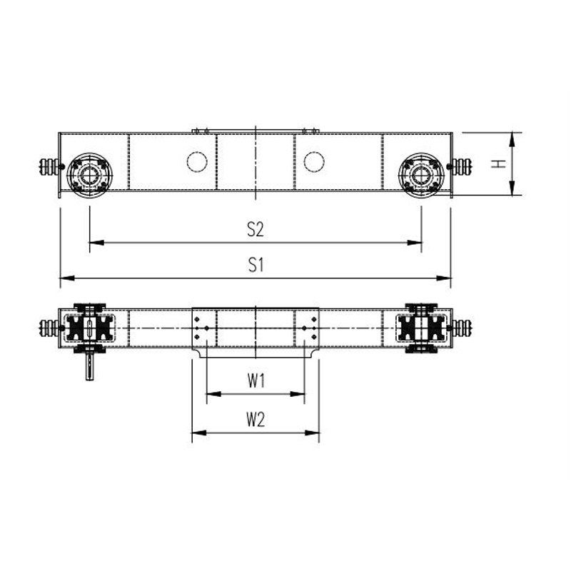
Model Penggunaan model kren Spesifikasi Tiub Persegi Saiz Roda Model Motor S1(mm) S2(mm) W1(mm) W2(mm) H(mm)
UL125-15 3.2t-7.5m 150x200x8 U125x60 FA27-0.55kW-73 1500 1280 400 550 212.5
UL125-20 3.2t-11.5m 2000 1780 400 550 212.5
UL125-25 3.2t-16.5m 2500 2280 400 550 212.5
UL125-30 3.2t-22.5m 3000 2780 500 650 212.5
UL125-35 3.2t-28.5m 3500 3280 600 750 212.5
UL160-15 6.3t-7.5m 150x250x8 U160x70 FA37-0.75kW-60 1500 1200 400 550 270
UL160-20 6.3t-11.5m 2000 1700 400 550 270
UL160-25 6.3t-16.5m 2500 2200 400 550 270
UL160-30 6.3t-22.5m 3000 2700 500 650 270
UL160-35 6.3t-28.5m 3500 3200 600 750 270
UL200-20 12.5t-11.5m 200x300x10 U200x70 FA47-1.1kW-48 2000 1700 500 650 320
UL200-25 12.5t-16.5m 2500 2200 500 650 320
UL200-30 12.5t-22.5m 3000 2700 600 750 320
UL200-35 12.5t-28.5m 3500 3200 600 750 320
UL250-20 16t-11.5m 200x400x10 U250x90 FA57-1.5kW-39 2000 1600 500 650 425
UL250-25 16t-16.5m 2500 2100 600 750 425
UL250-30 16t-22.5m 3000 2600 600 750 425
UL250-35 16t-28.5m 3500 3100 700 850 425
UL315-30 20t-16.5m 200x400x10 U315x80 FA67-2.2kW-32 3000 2500 600 750 430
UL315-35 20t-22.5m 3500 3000 600 750 430
UL315-40 20t-28.5m 4000 3500 700 850 430
Zhejiang Shuangniao Lifting Equipment Co., Ltd. ialah sebuah syarikat peralatan khas yang mengkhusus dalam penyelidikan dan pembangunan, pengeluaran, pemasaran dan perkhidmatan selepas jualan alat angkat elektrik tali dawai. Sejak penubuhannya, syarikat telah mementingkan pembangunan produk baharu dan inovasi teknologi, dan telah memfokuskan pada titik permulaan yang tinggi dan konfigurasi tinggi. Dalam penyelidikan dan pembangunan angkat elektrik, sambil terus memperkenalkan teknologi canggih asing, ia secara aktif membangunkan penyelidikan dan pembangunan angkat elektrik gaya Eropah baharu, dan mewujudkan konsep teras "inovasi menerajui masa depan, menumpukan pada pencapaian yang indah", yang telah menjadi baling-baling pembangunan angkat elektrik domestik dan menerajui Pembangunan industri angkat elektrik domestik.
Tentang Kami
Zhejiang Shuangniao Lifting Equipment Co., Ltd.
Zhejiang Shuangniao Lifting Equipment Co., Ltd.

Zhejiang Shuangniao Lifting Equipment Co., Ltd. ialah sebuah syarikat peralatan khas yang mengkhusus dalam penyelidikan dan pembangunan, pengeluaran, pemasaran dan perkhidmatan selepas jualan alat angkat elektrik tali dawai. Sejak penubuhannya, syarikat telah mementingkan pembangunan produk baharu dan inovasi teknologi, dan telah memfokuskan pada titik permulaan yang tinggi dan konfigurasi tinggi. Dalam penyelidikan dan pembangunan angkat elektrik, sambil terus memperkenalkan teknologi canggih asing, ia secara aktif membangunkan penyelidikan dan pembangunan angkat elektrik gaya Eropah baharu, dan mewujudkan konsep teras "inovasi menerajui masa depan, menumpukan pada pencapaian yang indah", yang telah menjadi baling-baling pembangunan angkat elektrik domestik dan menerajui Pembangunan industri angkat elektrik domestik.

Berita